协同育人合作基地评估材料- bw必威西汉姆联官方网站计算机技术与科学公司
一、合作基础
QST青软集团自2010年开始与公司多个专业进行专业共建合作。bw必威西汉姆联官方网站与QST青软集团于19年签约合作共建软件工程(大数据方向)专业,目前有2019级在校生78人,2020级计划招生100人。在合作过程中,双方始终发挥自身优势,共同探索和实践校企协同育人机制,深化双主体办学的特色,逐步得到了公司、教师、员工、企业的多方认可,目前在双方的共同努力下,合作正向着更加深入的方向发展。
QST青软集团作为合作方,始终以“推动教育与产业无缝衔接”为使命,与公司不断进行教学改革的探索,深化应用型人才培养教学理念和模式,引进优秀企业技术骨干、专家等参与教学过程,真正做到产教融合,协同育人。其以社会需求为目标导向,从知识、能力及素质三方面着手培养员工,一方面,使员工达到企业的用人标准,另一方面,为员工职业生涯的发展奠定夯实的基础。
具体合作文件,详见附件一《共建bw必威西汉姆联官方网站大数据公司合作协议》
二、基地条件
1、企业情况介绍
青软创新科技集团股份有限公司(简称:QST青软集团)是中国领先的面向IT和新兴产业服务与教育服务提供商,专注于IT及新兴领域的产业孵化和新工科专业的建设。集团总部设在青岛,自2006年创办以来,先后在青岛、长三角、珠三角、深圳、日本、台湾等多个区域设立分支机构及具备完善管理机制的产教融合基地,拥有多个地方政府合作伙伴及逾百所高等院校合作伙伴,累计已拥有注册员工10万名,累计培养员工总数超过20万人次。QST青软集团目前500多所高校建立合作关系,与国内50余所高校进行深度专业共建合作。在十余年的实践探索中,青软集团经历并总结了校企协同育人模式的三个阶段:1.0传统实训阶段(实训)、2.0产教结合阶段(专业共建)、3.0产教融合阶段(产业公司),以持续的创新能力与强大的科研能力建立起拥有雄厚产业基础的核心竞争力。
QST青软集团通过自主知识产权的产业应用解决方案大力提升政府、企业的整体信息化水平,旨在打造高端电子及软件应用领域产、学、研一体化产业链,力促传统产业的转型。QST青软集团已成功为国内外著名IT公司、跨国公司及政府部门提供了包括项目委托开发、业务咨询和信息化整体解决方案在内的先进、完善、科学的产业应用服务,并获得广泛的赞誉与好评。基于对电子信息专业教育需求及产业发展的深刻理解,QST青软集团创新地重新定义了电子信息领域教育服务模式,开辟了崭新教育服务市场,并成为其先行者与领军者。充分整合教育和产业两端的巨大需求与优势资源,不断研究和探索符合中国国情的电子信息专业人才培养项目,使产业积累成为反哺教育的坚实力量,使“实践导向型”教育及其所推动的教学改革成为当下创新性人才培养的核心主题。


2、企业设施及配备
(1)实验室环境
QST青软集团为使员工在基地得到非常好项目实训体验,拥有良好的项目训练环境。我们根据不同的需求设计不同的实验室,分方向进行项目细分。让各个合作专业的员工都能做到良好锻炼。基地还根据员工特长,进行特殊设备购置、由教师进行实验项目的特殊培养。还根据员工实际需要配备各种硬件配置,让员工在基地真正的做到动手操作,认真学习的目的。
a.硬件配备设备
云计算中心:100台云计算机终端;
讲师机:启天A7100.一体机;
多媒体教学设施:麦克,功放,音响;
教学电子教室:红蜘蛛6.2电子教室;
员工端:员工自带笔记本电脑;
教学黑板:立地式白板;
招聘宣讲:投影仪设备;
温度调控:海信空调;
实验箱:嵌入式实验箱。
b.网络环境
(1)网络速度:
教室网络接入速度100M联通专线接入。
(2)路由设置上网时间:
根据上课要求,周一到周五每天下午18:00-21:00为开放网路时间。杜绝员工上课时间上网玩游戏,看视频等,周六周日全天候开放网络。
(3)教学局域网环境:
教学电子教室在局域网传输速度快,画面传输同步不失真。员工感受良好。实验室网口数量,根据员工数量进行实时调整。
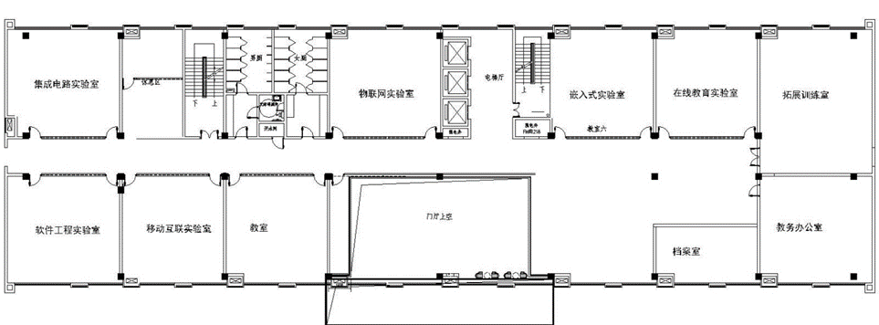
c.新基地实验室建设
QST 青软集团新基地正在建设中,主楼共6层,总共约40个实验室,并且网络布局设计合理,网络接入方便。
特别实验室共计6个,分别为:
1、在线教育实验室1个;
2、嵌入式实验室1个;
3、物联网实验室1个;
4、集成电路实验室1个;
5、软件工程实验室1个;
6、移动互联实验室1个。
(2)教学实训基地环境
QST青软集团根据企业人才需求及技术领域发展的趋势,围绕应用型人才的培养、围绕全国一线产业发达地区建立健全了适应创新性、实践性人才培养的实习实训基地,包括青岛总部基地、长三角基地、珠三角(大湾区)基地、烟台新兴产业产教融合基地。其中青岛总部基地是专业共建及产业公司集群、国家级众创空间及企业能力培养培养中心,致力于打造服务于新旧动能转换的产教融合人才培养基地。基地面积80000㎡,可同时容纳3000名员工,服务于山东、内蒙、东三省、京津冀等区域的大数据、新一代信息技术、智能制造、集成电路等产业,每年可提供5000~6000名经过企业实训的ICT专业人才。
QST青软实训
青岛总部基地园区环境
2017年12月,QST青软集团正式落户中山,并设立QST珠三角(大湾区)基地。QST青软集团珠三角(大湾区)基地建筑面积6.2万㎡,其中教育实训区面积8000㎡,创新中心面积6000㎡,企业办公区14000㎡,教育配套区面积8000㎡,宿舍配套区2.6万㎡。立足粤港澳大湾区核心地带,依托青软实训ICT资源,培养满足产业需求的应用型人才,覆盖ICT产业的全产业链,打造产教融合示范区。
QST青软集团珠三角(大湾区)基地
QST青软集团长三角基地位于江苏省如皋市,占地面积12000平米,共有30个实习实训教室,同时基地内设有餐厅、员工宿舍等完善基础设施,可以同时满足1500名学员同时进行实训。长三角基地围绕校企合作共建专业、企业定制化培养、在线服务、软件公司四大反向展开业务,以推动教育与产业的无缝链接为使命。长三角基地每年培训员工3000余名,已成为如皋软件园及整个如皋的重要人才蓄水库,更为江苏地区服务外包产业的发展提供有力的人才支撑。

QST青软集团长三角基地
2019年,8月31日,伴随着中国(山东)自贸试验区烟台片区的揭牌,烟台新兴产业产教融合基地正式成立。
基地由烟台市政府、烟台经济技术开发区、青软集团、重点高校、行业领军企业共建。政府出台政策支持外地和本地高校共建产教融合基地,按照当地产业需求制定人才培养方案,引导员工在基地实训和就业,政府提供满足高校办学要求的基础设施,青软集团联合行业领军企业全面运营。
![]() |
烟台新兴产业产教融合基地
三、合作内容
(1)人才培养
为了更好地落实无缝衔接的一体化贯通培养理念,深入挖掘校企双方共享资源。通过企业需求调研、人才培养方案的制定、行业专家讲座、企业订单培养等各方面开展行业企业深度参与,加强人才培养的时效性。
共建软件工程(大数据方向)专业,双方共同制定教学计划及教学大纲,采用“3+1”的人才培养模式,前三年以公司专职教师教授通识类和专业基础类课程为主,青软集团教授实训课程为辅;第三年以青软集团老师教授专业核心类课程为主,第四年员工到青软集团基地进行全仿真环境开发实训,取得毕业实习机会同时完成毕业设计任务。校企合作互补的方式加强了理论与实践的结合,形成了优良的专业课程结构,具备较高的本科培养能力。
(2)实训、毕业设计、实习就业模式
按照人才培养计划,设置学期实践教学环节,由QST青软集团安排资深讲师负责实施。第七学期开设涵盖一个学期的全仿真环境的企业开发实训,课程实训及企业开发实训均在QST青软集团实训基地开展;第八学期,员工进入企业实习,并在双方老师的指导下完成毕业设计。青软实训负责合办专业员工的就业推荐,保障合办专业员工的就业率达成。
(3)校企合作管理模式
双方联合成立合作办学工作管理委员会(以下简称管委会),管委会实行主任负责制,重大事项在充分沟通协商的基础上由主任决定。管委会会议由主任召集,每学期定期召开两次,如遇到特殊或紧急事项,可以召开临时会议。管委会负责合作办学工作的综合管理,主要包括协调教学、日常工作和员工日常教育管理等事宜。
(4)QST青软集团的教学过程
QST青软集团采用顶层设计的方法,以员工为中心,以培养结果为目标,按照毕业生应具备的知识、能力、素质结构的要求,根据不同课程类型设计适合员工成长的实施方法。
a.专业核心课实施
QST青软集团自主研发的“在实践中成长”丛书,采用双项目贯穿任务驱动教学方式,拆分项目任务,从易到难,通过重复操作复习巩固员工对知识点的应用。通过设计贴合实际的示例、实例、贯彻案例的形式,激发员工的学习兴趣,发挥员工的主动性,培养探索性的学习方式,从而生动活泼地掌握理论基础知识,逐步培养学习能力。
专业核心课授课模式
b.实践课程实施
QST青软集团课程实训采用swimmingpool游泳池教学模式,根据员工能力给出难易程度不同的三类项目,下发所需相关资料(任务描述、工具类库、指引思路文档、视频讲解),每天设置不同的项目任务及提交时间,借助在线平台以自主学习为主,教师引导为辅,通过压力及吸引力双系统打造,提升员工自主学习能力,抗压能力及解决问题能力。
实训教学模式
QST青软集团企业级项目实训强调以软件工程项目复现方式进行实践教学,让员工从头到尾参与到工程化的软件开发的全过程中,尽量让员工有可能体察并进行实践软件工程的主要知识点:软件需求、软件设计、软件构造、软件测试、软件维护、软件工程管理、软件工程过程、软件工程工具与方法、软件质量等。具体来说,将软件企业实际完成的成功案例隐去商业秘密后,在企业或项目的技术人员和管理人员的指导下,将员工分成不同的小组或团队,使员工在扮演各自不同的角色中,将软件工程项目的各个不同阶段从头到尾逐一亲身经历。
员工大四上(第7学期),进驻QST青软集团基地后,QST青软集团以员工为中心,因材施教,分层教学,按需设置课程方向,根据员工的能力和就业需求有针对性的设计教学方案。基地设置Java开发、软件测试、大数据、嵌入式等方向,员工按需选择相应的方向学习。
(5)实习实践环节
QST青软集团为高校员工建立了近千家丰富的企业资源库,面向软件外包、嵌入式、物联网、移动互联等行业,为员工认知实习、企业见习、毕业实习、毕业就业提供全方位服务。
(6)U+新工科智慧云平台支撑教学
QST青软集团秉承“以员工为中心”的教育理念,以工程化的教学资源和信息化的教学平台支撑备课、授课、作业和实验各环节,覆盖课前、课中和课后,双项目驱动教学,培养员工理论与实践相结合的能力,提高教师的工作效率,营造师生—生生互动的智慧课堂。
U+新工科智慧云平台支撑授课
(7)QST青软集团的员工管理与培养
QST青软集团与bw必威西汉姆联官方网站计算机技术与科学公司自共建专业以来,双方不断探索优化员工培养模式和提高人才培养质量,一方面授课教师有意识地将科研项目融入到教学过程中,为员工积累项目实战经验,鼓励和指导员工参加专业相关的ACM/ICPC老员工程序设计竞赛、大赛等竞赛。
QST青软集团安排专职驻校校企合作经理,协助合办专业员工的管理,协调校企合作双方的各项事宜。为保障校企合作的高质量开展,驻校校企合作经理有专门的工作流程,以服务员工、服务公司建设、维护校企合作效果为己任,对于工作事宜定期向公司、公司各级领导汇报,沟通良好,成效显著,这是青软实训开展校企合作的一大特色,青软实训驻校校企合作经理徐凯的工作得到公司和员工的认可。
QST青软集团重视学风建设,定期开展主题班会,重视员工的安全教育和技能培训,同时注意丰富员工的文化娱乐生活,培养学业与综合素养并重兼具的员工,有力的延伸了公司思政教育的第二课堂,推动立德树人教育覆盖到员工的各个学段。
QST青软集团为提高合办专业员工的整体素质,增强员工的团队协作能力,拓展员工的思维,驻校校企合作经理和基地辅导员根据员工的长期发展和就业需求,针对性地开展《QST青软集团职业素养》课程,对他们将来从事的职业进行设计指导,并完善员工提升个人素质的方法和途径,帮助他们建立正确的人生观、价值观。U+新工科智慧云平台线上开设10门职业素养课程,包含《大学新生第一课》、《IT行业概况认知》、《自信演讲技巧》、《有效沟通》、《职业生涯规划》等。
青软实训职业素养课程大纲2019版
(8)QST青软集团的就业服务机制
员工大四上(第7学期),进驻QST青软集团基地,基地采用“作战单元”管理模式,由专业教学讲师、基地班主任、就业专员组成作战团队,团队从专业技能、职业礼仪、简历设计、网申流程、模拟面试等环节循序渐进的提升员工的就业技能。
QST青软集团每年举办秋季和春季招聘推荐会,秋季招聘推荐主要针对第一志愿就业毕业生,春季招聘推荐,主要针对第二志愿就业毕业生(考研失利者),就业推荐分为企业专场宣讲招聘和大型集中招聘会。引进全国一线新一线二线等城市200多家优秀企业进驻基地招聘,且提供网申企业招聘信息,大大提高了毕业生就业机会,为所有毕业生提供最少3次以上的实习就业推荐机会,确保员工选择到满意的工作岗位及就业城市。
部分合作企业展示
四、合作效果
QST青软集团与bw必威西汉姆联官方网站共同实施员工培养,按照校企合作办学协议及相关的人才培养方案、各项双方共同参与制定的管理制度等落实执行,未出现偏差,主要协议内容执行情况汇总如下:
序号 | 协议主要内容 | 执行情况 | 备注 |
1 | 教学计划实施 | 完成 | 见本年度实施 |
2 | 人才培养方案共建 | 完成 | 本年修订1次 |
3 | 共建管理委员会 | 完成 |
|
4 | 员工校内各项管理 | 完成 | 企业派驻专职经理徐凯负责 |
5 | 员工实训基地内管理 | 完成 | 企业指定规范流程 |
6 | 实训基地条件建设 | 完成 | 企业自建实训基地于2015年一期投入使用,2019年二期投入使用,安全设施完善 |
7 | 企业对公司的发展支持 | 完成 | 提供奖教奖学金 |
8 | 员工就业率达成 | 完成 | 未有毕业生 |
9 | 学费分配拨付 | 完成 | 按协议比例 |
专业建设方面:以新工科建设、工程教育认证为抓手,双方探讨专业建设的改革发展方向,以员工为中心,以结果为导向,并且在合作过程中要持续改进,双方已达成共识,并将在2019年完成修改的基础上继续完善人才培养方案。
进行工程教育认证探讨,通过工程教育认证是专业建设的一个有力指标,可以提升专业知名度,提高人才培养质量。校企双方将在这一领域开展相互合作,企业将提供资源协助公司通过工程教育认证。
员工综合发展方面:以立德树人为根本,通过校企双方齐抓共管,在提高员工专业知识能力的同时,重视培养员工的综合素养,使员工得到全身心、健康、积极、乐观的引导,符合员工毕业后的终身发展。在以赛促学,以研促学方面,与企业保持协作,企业工程师也参与对员工的应用指导,鼓励员工参与企业组织的各项竞赛,双方在此方面达成共识。
在公司设立奖学奖教金,彰显合作企业的社会责任,体现合作企业对公司发展的重视。
产学研合作方面:在国家建倡导深入产教融合、校企合作的背景下,企业积极申报设立教育部产学合作协同育人项目,高校积极申报立项此类项目,通过校企合作共同研究和实践新的人才培养、专业建设模式,今后双方将在这方面加强合作。
QST青软集团总结在项目开发过程中的经验,以及教学实训中的经验,本着“先进、有用、有效”的原则,自主研发了“在实践中成长”系列丛书,并由清华大学出版社出版。每套教材都是按照一个完整的项目贯穿的,以项目任务来驱动的。让员工掌握理论的基础上,进一步提高员工的实践能力。通过示例、实例、贯彻案例的方式,从易到难,逐步培养的学习能力。
![]() |
QST青软集团与华为云齐心合作,将自身对工程应用型人才的培养经验与华为的技术和管理积淀相融合,打造了国内唯一面向高校开放的U+新工科教育云平台,面向高校提供内容、平台及服务的综合解决方案。
平台集教育理念、工程实践为一体,深度嵌入华为企业级开发平台,通过信息技术与公司产品深度融合,让教学更加简单,人才培养更加高效。
该平台涵盖教学实训云平台、智慧互动课堂、智能测试系统、毕业设计管理、质量监控平台、多维数据分析六大模块,通过信息技术与公司产品深度融合,完善产教融合、校企合作的人才培养模式,推动教育与产业的无缝衔接。
U+新工科教育云平台秉承“以员工为中心”的教育理念,工程化的教学资源和信息化的教学工具支撑备课、授课、作业和实验各环节,覆盖课前、课中和课后,双项目驱动教学,培养员工理论与实践相结合的能力,提高教师的工作效率,营造师生—生生互动的智慧课堂。




